Architecture. Planning. Technical Detail.
-
Bespoke Residential Development, Wealden AONB
-
Contemporary Extension, Hastings
-
Residential development on Brownfield Site, Rother DC
-
Folks on Sea - Coffee shop refurb concept design, St Leonards
-
The Ferry Inn, Stone-in-Oxney
Client testimonials
-
Tom Gillespie
Professional, efficient, reliable and at a very reasonable price
-
Joe Lamb
What Jack doesn't know about the business isn't worth knowing. He's diligent, hard-working and supremely talented. He doesn't just tell you what you want to hear, which is almost unheard of in my experience. Highly recommend him and Studio on Sea
-
N/A
Jack was a pleasure to work with from start to finish. This was my first house, so I had no idea where to start with an extension and Jack guided me throughout, including the planning process. He was always friendly, helpful and reassuring, making what could have been a stressful process very straightforward and easy. I wouldn't hesitate to recommend him.
On site: after months of progress working with multiple trades it’s always great to receive photos from our clients with the finishing touches.
More to follow.
Delighted to assist our client @rurbanestates with attaining planning permission for 3 residential dwellings in Rother.
A robust & coordinated approach addressing transport, design & ecology was undertaken to achieve approval.
We’re looking forward to taking this one through technical design & on site.
#planning #approval #architecture #rother #sussex #newbuild #studioonsea
Merry Christmas.
Thank you to our clients for their continued support & to an exciting 2025.
#studioonsea #stleonardsonsea #stleonardsonseaistheplacetobe #design #renovation #periodhome #periodproperty #conservation #garden #gardenapartment #concept #conceptdesign #architecture
On site_Kent.
From initial sketches to construction on site. Many hurdles are over come to get to this stage; planning, building regulations, structural coordination, value engineering, detailed design, just to name a few.
Seeing the design come together on site will always be pinch yourself moment.
Looking forward to seeing this bespoke extension, outbuilding & landscaping set against the rural landscape come together in the coming months.
#architecture #building #onsite #progress #kent #construction #design #rural #countryside #studio #studioonsea
Where all projects start.
Proposed bespoke new build dwelling in The AONB. A sloping slight provides opportunities to set the building within the landscape & create a new vernacular approach.
Testing forms & scale on site. Examining site opportunities & constraints to inform our proposals.
From the outset materials, light & the context we are working within are considered.
#newbuild #aonb #conceptdesign #handdrawn #site #architecture #architectureeastsussex #vernaculararchitecture #otdb #drawing #drawingboard
Concept development:
Developing the material palette & arrangement of the interior to create a space of calm. A simple palette of honest crafted materials brings light deep into the space beyond.
#stleonards #architecture #interiordesign #renovation #reconfiguration #hastings #light #concrete #naturallight #courtyard #stleonardsarchitecture
WIP- on site. Conservation area.
Always great to see our projects on site, meeting specialist consultants & discussing details.
Can’t wait to see this one develop in the coming months.
Jack was instrumental in improving the design of a planning permission that came with a plot to build a family home . He led us through design , multiple surveys , consultants required , planning application and managed to get all pre commencement conditions signed off with the approval notice thanks to building a great relationship with the planning officer . He also provided a detailed construction drawing package to aid a smooth construction . A one stop shop . Very easy to work with and excellent attention to detail . A very positive experience and we will use him again on future projects .
Edward Bowen .
#planning #construction #newbuild #development #details #wip #onsite #conservationarea #conservation #kent
Approval granted:
Full planning required for the change of use for an artisan butchers located in Hastings town centre as well as one of the many Conservation Areas in the town.
Studio on Sea were appointed to prepare the necessary drawing package & accompanying statements for the full planning application to ascertain the necessary change of use.
Working with the team at Beak & Tail as well Hastings Borough Council ensured a timely & positive outcome for all involved.
#planning #planningpermission #planningpermissiongranted #hastings #commercial #conservationarea #changeofuse #approval
Today marks 1 year since forming the studio, we cannot thank all our clients enough.
Here’s to year 2 with lots of exciting projects to come.
#hastings #stleonards #local #localbusiness #localarchitecture #localpeople
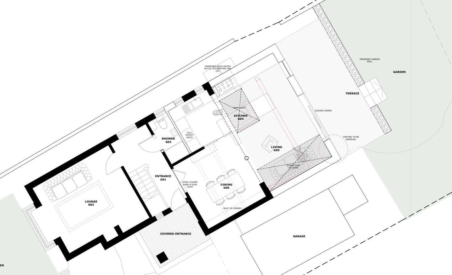
We are delighted to receive planning permission for this contemporary extension in Hastings. The scheme creates an open plan, socially focussed space, making the most of natural light within the roof slopes. The scheme respects local scale & sits comfortably within its residential context. The palette of materials are detailed as such to create a simple but crisp addition.
Looking forward to taking this through to technical design & assisting on site.
#planning #planningconsent #planninggranted #hastings #hastingsarchitecture #design #extension #architecturaldesign #plan #openplan #openplanliving #periodoroperty